Christopher Danesi at RE/MAX Accord - 925.998.7426
SOLD! MLS: 41064383 $545,000
2 Bedrooms with 2 Baths2755 COUNTRY DR # 144
FREMONT CA 94536MLS: 41064383
Status: SOLD
Closed On: 2024-08-30
Sold Price: $545,000
Sold Price per SqFt: $574
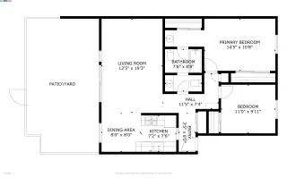
Square Footage: 9502 Bedrooms
2 Baths
Year Built: 1970
Zip Code: 94536
Listing Remarks
Discover the charm of this inviting ground floor condo nestled in the heart of Fremont's coveted Parkmont Gardens Community! Meticulously occupied and maintained by the seller for nearly two decades before relocating, this approximately 950sf residence boasts 2 spacious bedrooms, 1.5 bathrooms, and an assigned covered parking spot with additional storage. The expansive open-concept living and dining area is flooded with natural light, creating a bright and airy atmosphere. Step outside to your private patio and backyard oasis, adorned with fruit trees and landscaping, offering serene outdoor entertaining and a private gate. Enjoy the community's amenities including a clubhouse, swimming pool, greenbelt—HOA includes water garbage. Perfectly situated within walking distance to Fremont BART, Washington Hospital, parks, schools (including the highly-rated Parkmont School), Whole Foods, and a myriad of dining and shopping options. Lake Elizabeth, Fremont Library, and Costco are nearby. Easy commuting with access to 84/880/680 Fremont BART, Dumbarton Bridge & ACE. The seller initially considered enhancing the property but has adjusted the price to allow the buyer the opportunity to personalize and make their own improvements, presenting an excellent chance for first-time homeowner
Address: 2755 COUNTRY DR # 144 FREMONT CA 94536
Listing Agent: YEFIM RAYSBERG of KELLER WILLIAMS REALTY
Condo Mania Agent
Chris Danesi
RE/MAX Accord
DRE #01777489
Phone: 925.998.7426
Request More Information
Listing Details
STATUS: Closed SPECIAL LISTING CONDITIONS: Standard LISTING CONTRACT DATE: 2024-06-28 CLOSE DATE: 2024-08-30 BEDROOMS: 2 BATHROOMS FULL: 1 LIVING AREA SQ FT: 950 BUILDING AREA TOTAL: 950 YEAR BUILT: 1970 HOA/MGMT CO: PARKMONT GARDENS HOA HOA/MGMT PHONE: 925-495-4545 HOA FEES FREQUENCY: Monthly HOA FEES: $548 HOA INCLUDES: Common Area Maint, Earthquake Insurance, Exterior Maintenance, Hazard Insurance, Management Fee, Reserves, Trash, Water/Sewer HOA AMENITIES: Clubhouse, Greenbelt, Pool, Other, Barbecue, BBQ Area, Guest Parking, Laundry, Park, See Remarks APPLIANCES INCLUDED: Dishwasher, Range, Refrigerator ARCHITECTURAL STYLE: Other BUILDING NAME: Parkmont Grdns CONSTRUCTION: Stucco EXTERIOR FEATURES: Backyard, Back Yard, Storage Area, Yard Space FIREPLACE: None FLOORING: Laminate, Carpet HEATING: Wall Furnace COOLING: Ceiling Fan(s) INTERIOR FEATURES: Ground Floor Location, Storage, Laminate Counters, Eat-in Kitchen, Updated Kitchen LAUNDRY FEATURES: Community Facility # GARAGE SPACES: 0 PARKING FEATURES: Carport, Parking Spaces PETS ALLOWED Y/N: Other PROPERTY TYPE: Residential PROPERTY SUB TYPE: Condominium ROOF: Shingle ROOMS TOTAL: 4 POOL FEATURES: In Ground, Community VIEW: City Lights LISTING AGENT: YEFIM RAYSBERG LISTING OFFICE: KELLER WILLIAMS REALTY
Property Location: 2755 COUNTRY DR # 144 FREMONT CA 94536
This Listing
Active Listings Nearby
You Might Also Be Interested In...
Bay East ©2026. CCAR ©2026. bridgeMLS ©2026. Information Deemed Reliable But Not Guaranteed. This information is being provided by the Bay East MLS, or CCAR MLS, or bridgeMLS. All data, including all measurements and calculations of area, is obtained from various sources and has not been, and will not be, verified by broker or MLS. All information should be independently reviewed and verified for accuracy. Properties may or may not be listed by the office/agent presenting the information.This information is intended for the personal use of consumers and may not be used for any purpose other than to identify prospective properties consumers may be interested in purchasing.
The Fair Housing Act prohibits discrimination in housing based on color, race, religion, national origin, sex, familial status, or disability.
Information Deemed Reliable But Not Guaranteed. The information being provided is for consumer's personal, non-commercial use and may not be used for any purpose other than to identify prospective properties consumers may be interested in purchasing. This information, including square footage, while not guaranteed, has been acquired from sources believed to be reliable.
Last Updated: 2026-04-08
East Bay Condo Mania







