Christopher Danesi at RE/MAX Accord - 925.998.7426
SOLD! MLS: 41044814 $1,190,343
3 Bedrooms with 4 Baths1305 POTENZA TERRACE
SAN RAMON CA 94583MLS: 41044814
Status: SOLD
Closed On: 2024-04-25
Sold Price: $1,190,343
Sold Price per SqFt: $647
Square Footage: 18393 Bedrooms
4 Baths
Year Built: 2023
Zip Code: 94583
Listing Remarks
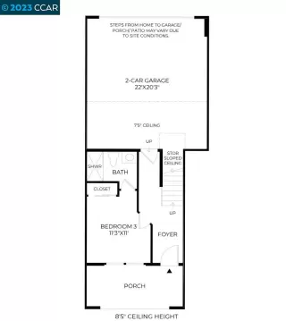
There's no place like home–especially if home is the Madelena. The second-floor living area is a host or hostess' dream with a spacious, open great room, casual dining area, and state-of-the-art kitchen complete with KitchenAid stainless steel appliances, 36" gas cooktop, ample counter space, walk-in pantry connected to a gorgeous covered balcony. On the home's third floor, the primary bedroom suite features a dual sink vanity, private water closet, luxe shower with seat, and walk-in closet. A secondary bedroom and convenient laundry area round out the upper level. Additional highlights include an inviting porch, first-floor bedroom, and two-car garage.
Address: 1305 POTENZA TERRACE SAN RAMON CA 94583
Listing Agent: TENISHA DONAVILLE of TOLL BROTHERS REAL ESTATE,INC
Condo Mania Agent
Chris Danesi
RE/MAX Accord
DRE #01777489
Phone: 925.998.7426
Request More Information
Listing Details
STATUS: Closed SPECIAL LISTING CONDITIONS: Standard LISTING CONTRACT DATE: 2023-11-21 CLOSE DATE: 2024-04-25 BEDROOMS: 3 BATHROOMS FULL: 3 LIVING AREA SQ FT: 1839 BUILDING AREA TOTAL: 1839 YEAR BUILT: 2023 HOA/MGMT CO: CALL LISTING AGENT HOA/MGMT PHONE: 925-951-5200 HOA FEES FREQUENCY: Monthly HOA FEES: $114 HOA INCLUDES: Common Area Maint, Exterior Maintenance, Management Fee, Reserves, Other, Maintenance Grounds, Street HOA AMENITIES: Other APPLIANCES INCLUDED: Dishwasher, Disposal, Gas Range, Microwave, Oven, Tankless Water Heater ARCHITECTURAL STYLE: Spanish BUILDING NAME: Not Listed CONSTRUCTION: Stucco EXTERIOR FEATURES: Side Yard, Other FIREPLACE: None FLOORING: Tile, Carpet HEATING: Zoned COOLING: Zoned INTERIOR FEATURES: Kitchen/Family Combo, Office, Breakfast Bar, Counter - Solid Surface, Kitchen Island, Pantry LAUNDRY FEATURES: 220 Volt Outlet, Hookups Only, Laundry Room, Upper Level LOT FEATURES: Other, Zero Lot Line, Landscape Front, Street Light(s) # GARAGE SPACES: 2 PARKING FEATURES: Attached, Side Yard Access, Guest, Garage Door Opener PROPERTY TYPE: Residential PROPERTY SUB TYPE: Condominium ROOMS TOTAL: 12 POOL FEATURES: None LISTING AGENT: TENISHA DONAVILLE LISTING OFFICE: TOLL BROTHERS REAL ESTATE,INC
Property Location: 1305 POTENZA TERRACE SAN RAMON CA 94583
This Listing
Active Listings Nearby
Bay East ©2026. CCAR ©2026. bridgeMLS ©2026. Information Deemed Reliable But Not Guaranteed. This information is being provided by the Bay East MLS, or CCAR MLS, or bridgeMLS. All data, including all measurements and calculations of area, is obtained from various sources and has not been, and will not be, verified by broker or MLS. All information should be independently reviewed and verified for accuracy. Properties may or may not be listed by the office/agent presenting the information.This information is intended for the personal use of consumers and may not be used for any purpose other than to identify prospective properties consumers may be interested in purchasing.
The Fair Housing Act prohibits discrimination in housing based on color, race, religion, national origin, sex, familial status, or disability.
Information Deemed Reliable But Not Guaranteed. The information being provided is for consumer's personal, non-commercial use and may not be used for any purpose other than to identify prospective properties consumers may be interested in purchasing. This information, including square footage, while not guaranteed, has been acquired from sources believed to be reliable.
Last Updated: 2026-05-05
East Bay Condo Mania







